Residence at Kadawatha

- Architects: KWCA – Kosala Weerasekara Chartered Architects
- Lead Architect: Kosala Weerasekara
- Project Architects: Sithija Shehan, Jenushan Satkunarajaha & Chalni Vithanage
- Location: Kadawatha, Sri Lanka
- Area: 2,500 ft2
- Project Year: 2021
- Structural Engineers: Lakruwan Fernando
- Main Contractors: Leo Home & Construction
- Landscape Contractors: Lotus Gate Private Limited
- Furniture Contractor: Best wood Interiors Private Limited
- Photographer: MAD Factory

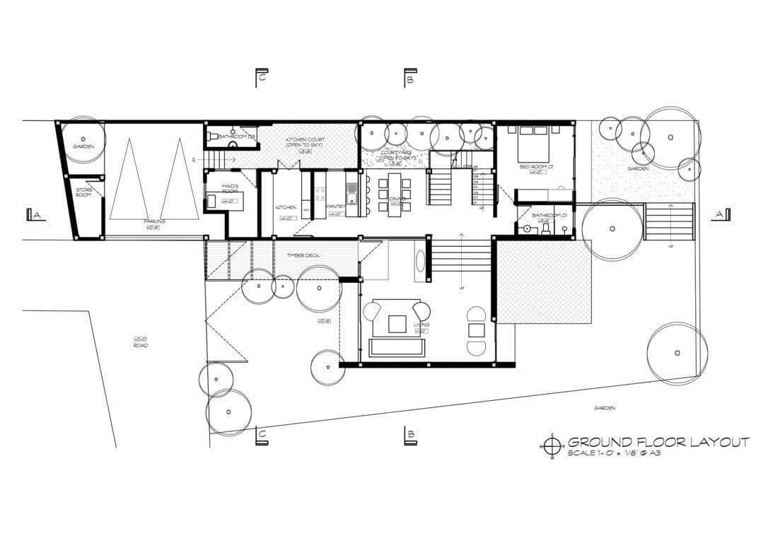
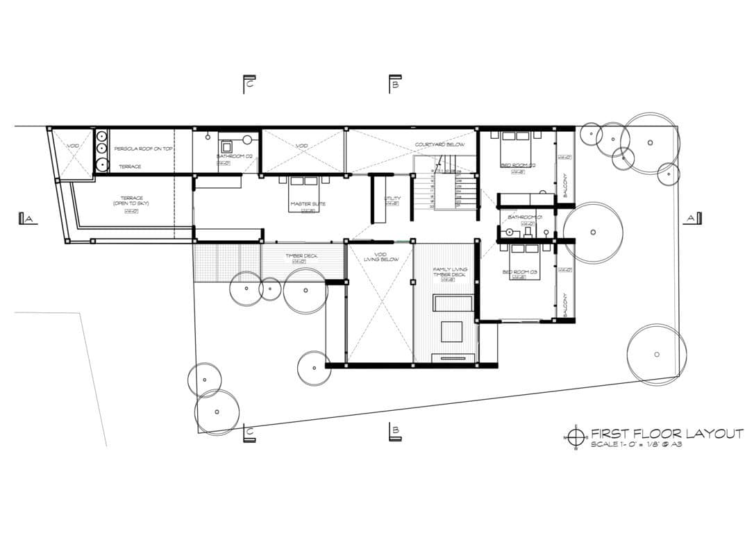
The residence is located in the outskirts of the Colombo district, designed for a family of four. The key requirements of the client was to design a space which was timeless , a space to lay back and relax in as well as a safe and interesting environment for their children to grow up in. The house was designed as an escape from the busy monotonous life that the family experiences from their day to day activities. Hence a natural life, an experience of connecting with both oneself and the natural environment.

The setting of the residence makes it possible to reintegrate the pre-existing alignments of the land and to therefore conserve as many existing trees as possible. The living space was created as if living in the park by seamlessly connecting floors and creating courtyards to introduce greenery into the spaces. The interplay of light and shadow is brought about by the steel pergola structures which creates an ever-changing ambience as the day goes by. The large double height space creates a visual connect between the floors.

Designed to be one with nature, private decks and terraces adjoining the spaces provide a stunning view of the surrounding wilderness. Abundant vegetation in the site provides privacy for the residents while offering a green and natural context for the neighborhood. The signature bath with an outdoor component reveals the freedom of taking a shower amidst the nature. This indulging tropical shower helps one reconnect with nature with the luxury of staying indoors.



Color and material also play an important role. Much of the rest of the material palette was selected for its raw qualities. The use of honest materials adds a texture as well as making it a lively space. The exposed bricks and visual connection to the outdoors, created through the glass façade, helps bring in the nature into the spaces. This helps to blur the boundaries between the interior and exterior. Thus creating a more spacious and calming environment.

With sustainability as the core idea, the use of reused and recycled timber planks, adds a sense of history to the space. Additionally, this would also have many environmental and economical befits. The richly colored interiors add an element of surprise to the project.



The placement of openings and the transparent façade permits for natural ventilation and lighting into the space, this results in a comfortable internal environment through passive cooling, despite the harsh sun.
Text description provided by the architects










