17A, Alfred House Gardens

- Architects: Axis Chartered Architects
- Lead Architect: Ranga Dayasena
- Location: Colombo, Sri Lanka
- Area: 5,000 ft2
- Land Extent: 11.4 perch
- Project Year: 2019
- Photographer: Janadithya Hewarachchi & Ranga Dayasena
- Author: Kusumitha Gamage

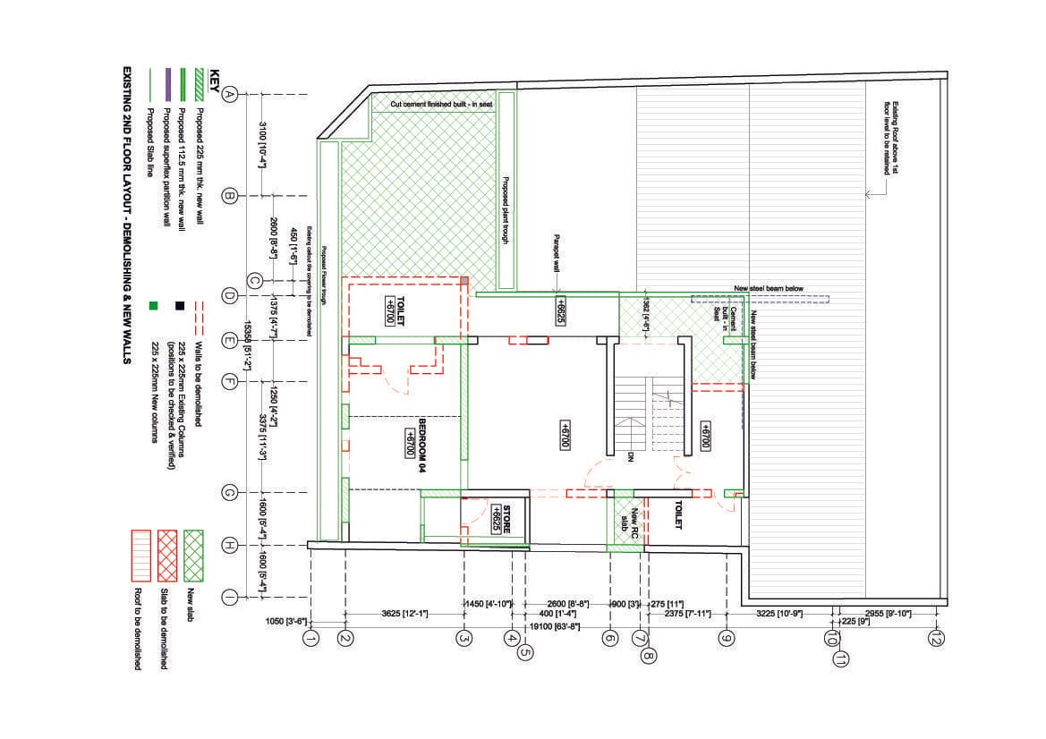
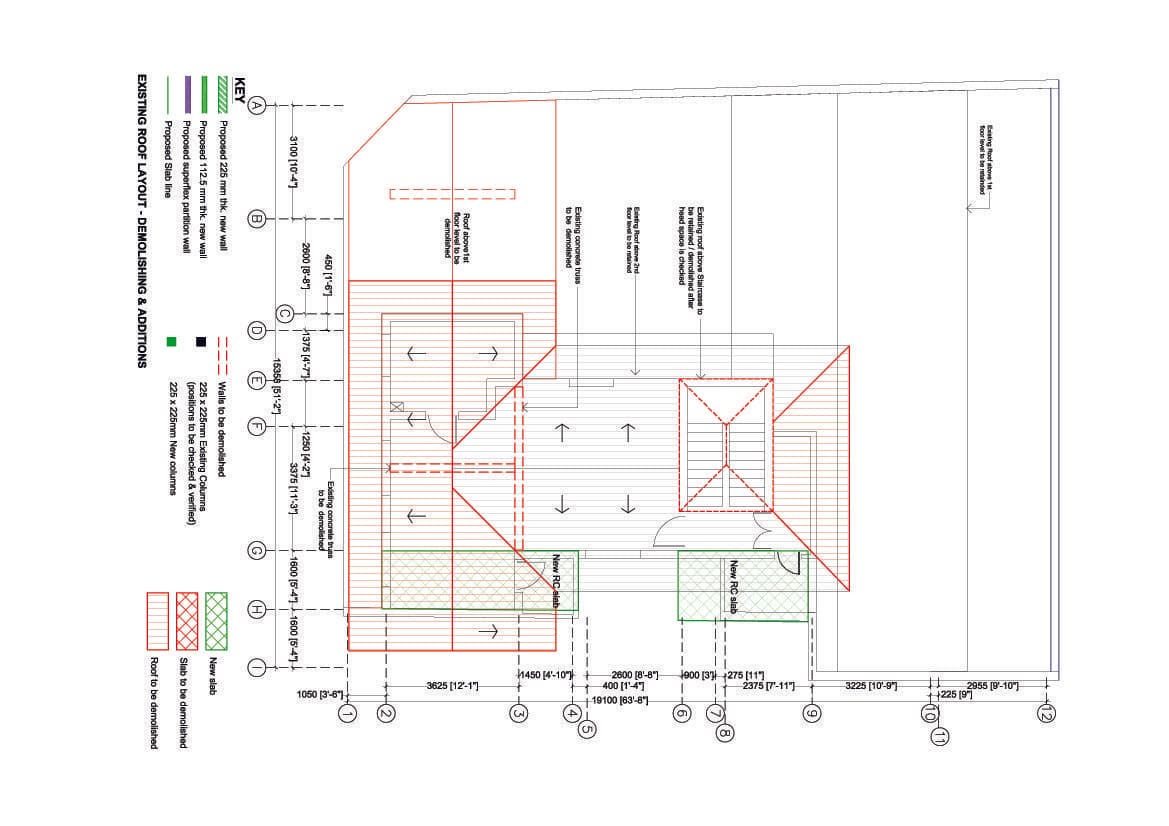
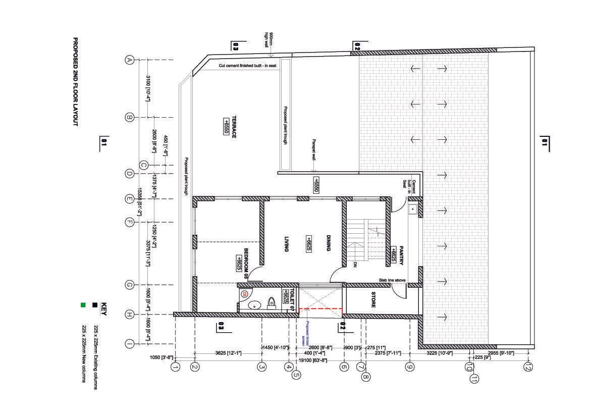
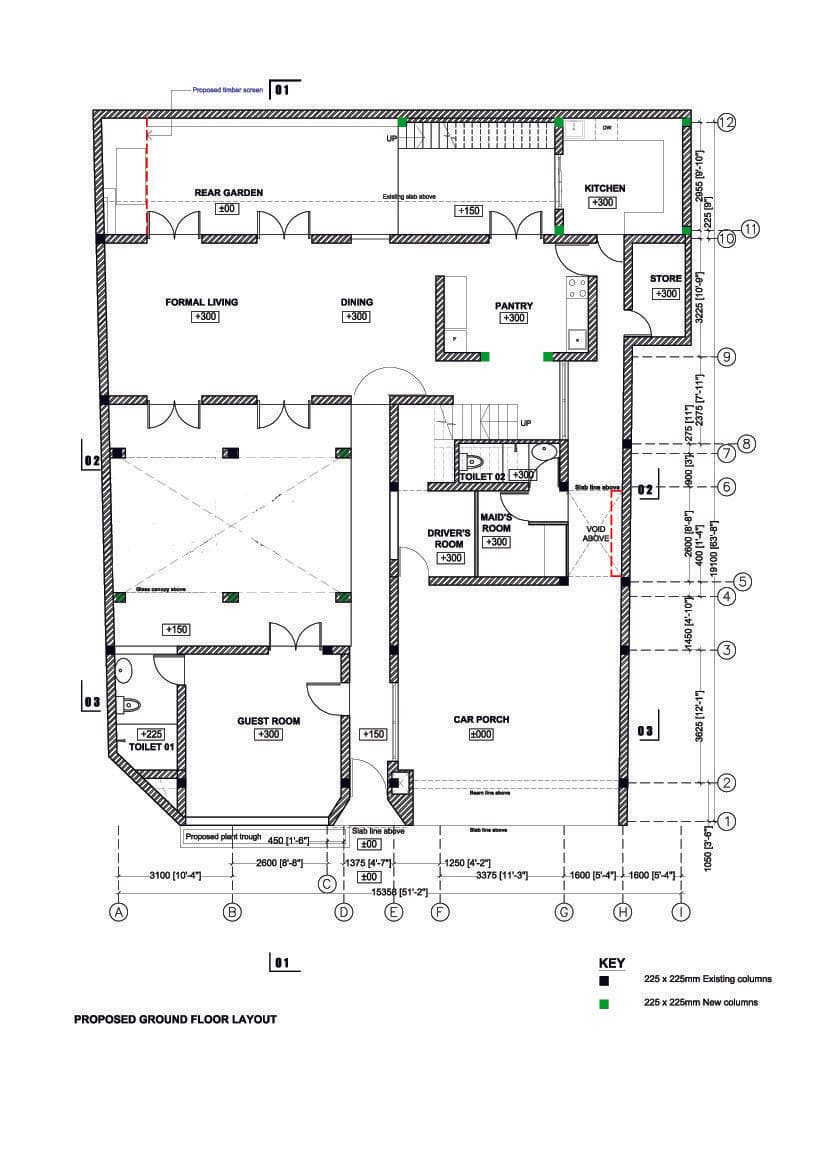
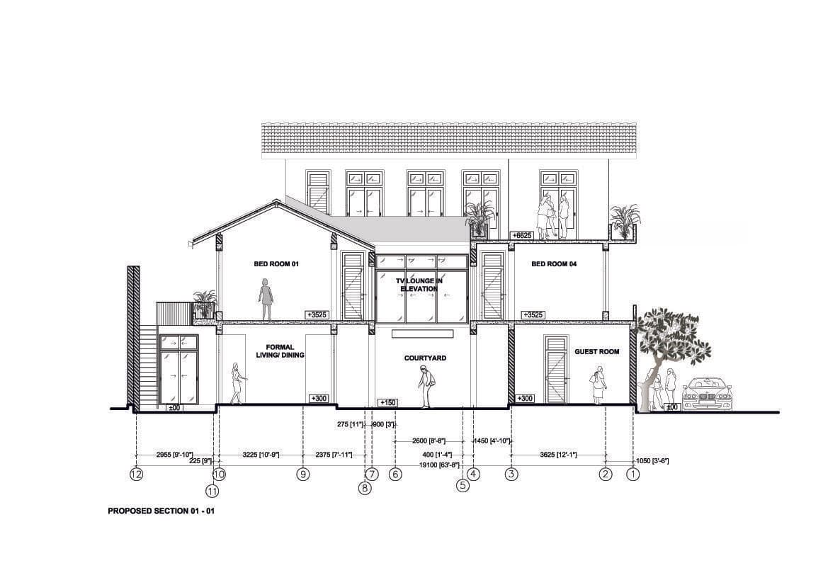
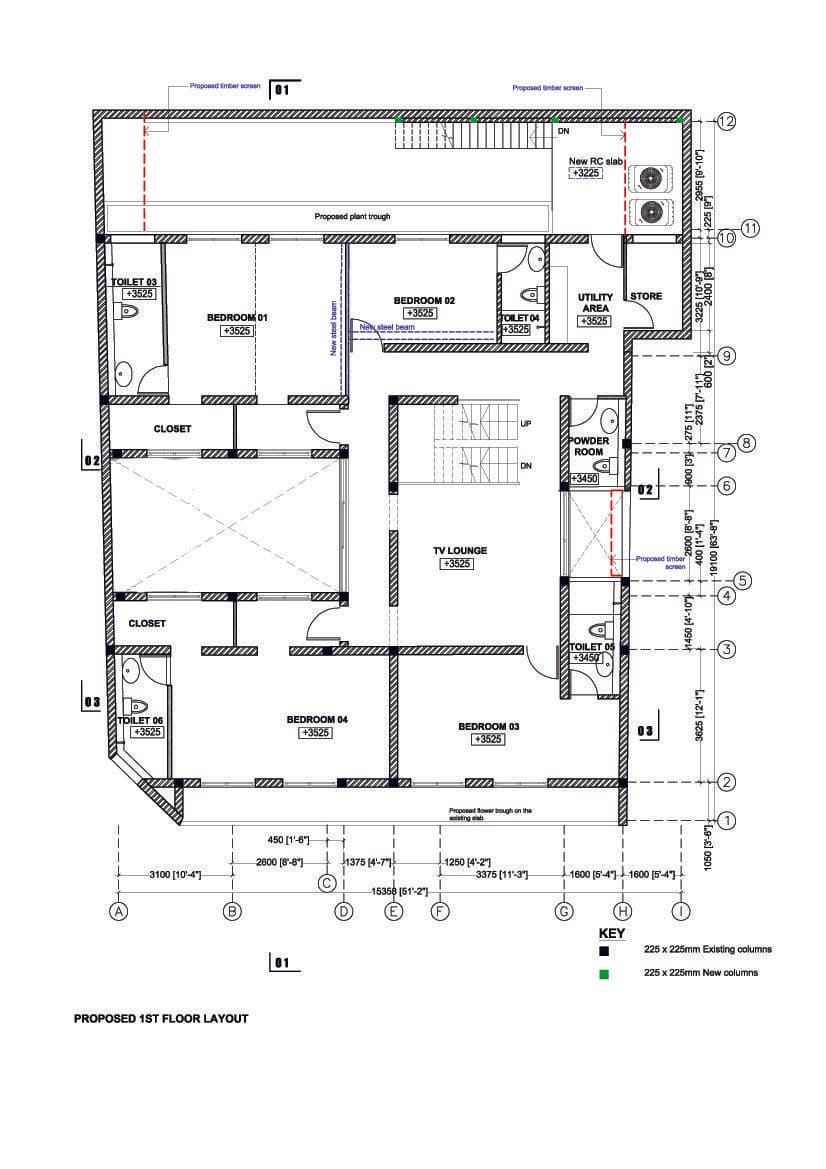
The nearly three decades old, dilapidated, three-storied family house was renovated with extensions, giving it a modern architectural makeover. Floor layouts were altered to introduce spatial discipline, reduce the spatial clutter, optimize building services, and enhance the use of sunlight & natural ventilation. The 2,560 sqft footprint fitted into the 11.4 perches (3,100 sqft) land in a highly exclusive residential neighborhood doesn’t provide the luxury of space to accommodate open areas that bring natural light and ventilation into the house. The existing courtyard was enhanced while a rear garden & a new light well were introduced to light up and ventilate the house thereby infusing a semblance of spaciousness.

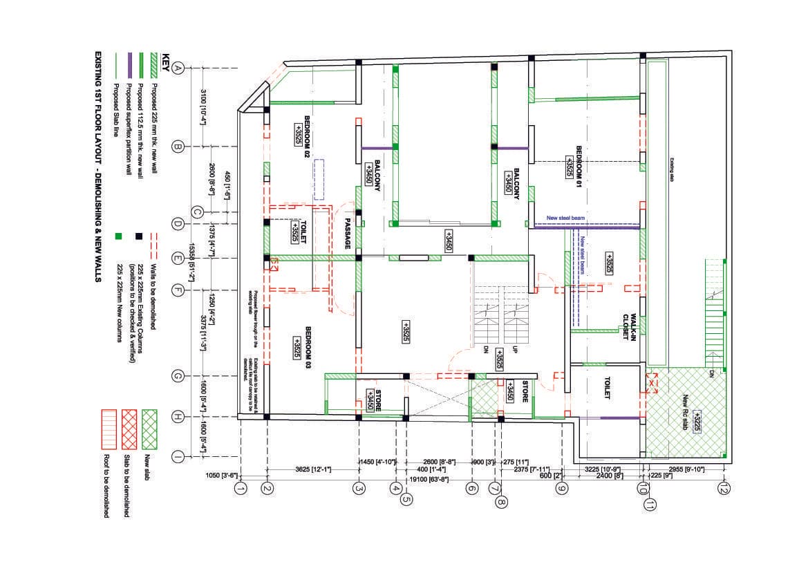
The old house was lacking a structural column grid, making unevenly placed load-bearing walls, a main part of the building structure. These structural walls were a challenge to the design task as they limited the ability to freely demolish walls to upgrade the floor layouts. However indoor-outdoor connections were achieved through careful manipulation of spaces. All main spaces on the ground floor were given views and access to at least one open space, bringing nature into the house. The heavily decorated existing openings were replaced with simple doors & windows that have minimal aesthetics, thereby effectively highlighting the views without giving unnecessary prominence to the openings.

The finishes and details of the house were carefully designed, to unclutter the dense floor plan. Glass guard rails lining up the openings and staircase ensure visual continuity. Timber floors complement the natural views created throughout the house, giving a sense of continuity that creates a spacious look and feel. Furniture selection was kept modern and minimal with a neutral colour palette. White painted walls infuse a spaciousness to the house while optimizing natural light.



Extensive services of the house that includes a VRF A/C system, a generator, PV panels, plumbing were enhanced with an energy-efficient approach. And energy-efficient VRF A/C system with two outdoor units was newly installed. Existing water supply system was retrofitted with an energy-friendly pressurized system that uses pumps with VSD facility. All toilets were renovated and repositioned to enhance ventilation and ease of sanitary plumbing & maintenance. Service features positioned in the outdoor areas were concealed using a timber screen that was designed to appear as a hard landscaping element, thereby blending in with the rest of the landscaping design.

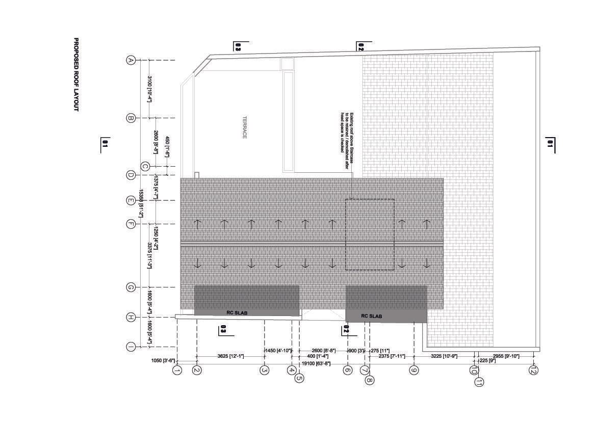
A plant trough lining the front façade was introduced to curb the effects of the western setting sun. Troughs lining the terraces act as a green privacy screen at upper levels, they provide an alternative view from the spaces by effectively concealing the densely built urban neighborhood. The roof terrace is an addition to the setting. This terrace acts as an escape space to the house. As the courtyard lack the luxury of spaciousness, the terrace will serve the purpose of a relaxing spill-out area where the residents get to connect with nature. The terrace is positioned lining the courtyard, giving it a semblance of continuous green space.

A water-efficient drip irrigation system that delivers water directly to the plant roots was incorporated into the plant troughs, making the landscaping resilient to the occasionally harsh tropical climatic conditions. Plants used in the landscaping were carefully selected, considering their aesthetics, crown spread, and ease of maintenance while complementing the microclimatic conditions of the context.
Text description provided by the architects










