Wijayanama House

- Architects: Lalith Gunadasa Architects
- Lead Architect: Lalith Gunadasa
- Design Team: Thilanka Upendra, Nelshika Gunathilaka & Dilanka Bandara
- Location: Nawala, Sri Lanka
- Area: 3,415 ft2
- Project Year: 2019
- Clients: Mr. & Mrs. Wijayanama
- Structural Engineers: URO Structural Consultants (pvt) ltd
- Contractor: MD Construction
- Landscape: Sarath Landscapes
- Photographer: Dilanka Bandara
- Author: Dewindi Ruwanpathirana

Nature loving amiable family having a hustle and bustle life style wanted to renovate their old house done in 1970’s, into a very calm quiet modern house where can unwind and enjoy tranquility. The design works were conceptualized to all internal and outdoor gardens that form an illusion of endless spaces creating an urban oasis. Site is situated at a dense urban residential area in Galpotta, Nawala.

Achieving the client’s demand and responding to the existing building and context;
Re planned the spatial arrangement, while retaining the foot print and the main structure of the old house. The house was renovated into three stories with a total floor area of 3415 square feet in a land extent of 13 perches.
The ground floor consists with a vehicle park, living area, dining, visitor room, toilet, pantry and service area.
Original front verandah was facilitated to the garage and the newly introduced Entrance passage was blended with the front garden, heading towards the Living area.
Double height voluminous opened out living area was created by demolishing the original first floor slab area over the original living and dining area.
Large timber and glazed door windows had been able to bring natural light where anyone will feel that nature is brought into inner spaces. Featured timber staircase with high vertical balusters enhances the voluminous feeling in the living.

The proposed new open to sky pond connecting the Living, Dining and the pantry; helps to maintain the good air circulation inside the house while adding extra beauty to the interior.
The Bed room facing to rear side was changed as the Dining area maintaining the design concept.
The pantry was retained at the original location upgrading the quality of the interior with more facilities while hiding the services from visitors.

Breaking the typical back yard concept the rear space was developed as a proper garden. Using of Pergolas over the rear garden has maintained the outstanding light shaded quality as well as privacy and security.
A bed room facing to the road side garden was upgraded as the visitor’s room which is located adjoining the living area on the same floor.

Straight and pure lines, simple forms, wide opening views and huge volumes with lots of natural light, minimize the distance between the indoor and outdoor. White painted walls and white tiled floors reflect the day light all over the spaces and destroy the compactness while making a tranquil, spacious dwelling.
The First Floor is fully comprised with three bed rooms and Master suite is occupied with an attached toilet and a working closet using original dining and balcony floor area at the same level.

Without clear boundaries, the integration of the areas like the Master Bed room in the first floor level and the ground floor Living area reveal a spatial expansiveness and symbiosis.
The master suite is opened out to a private outdoor terrace garden which is extended to the front garden at a different level. The hanging vines and planted trees covering the windows act as a green barrier to the master suite.

While modifying the original two bed rooms at the first floor, the bed room facing to the front garden and to the road was protected with large louvered timber-screens at the balcony edge. This resource assures ventilation and natural light, yet provides an outstanding quality of privacy and security.

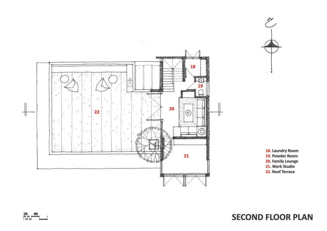
Instead of old asbestos corrugated angle roof, a RCC roof terrace has been introduced to maintain the design concept and to get a maximum utilization of the developed area.

The touch and feel of different elements and materials like stones, pebbles, glazed tiles, cement grills and timber gives a therapy to relax the body and mind.
Simple furniture and colour paintings enrich the calm repose quality of the authentic Sri Lankan interior.
Lilies, Thambojiya, Raffies alone with Dan,Biling,Valivarana,Cheena pera plants have been mingled with existing Mango and jack fruit trees to make the front garden just a little lush and tropical to attract the birds to the garden.

Newly added Second Floor is accommodated with a Family lounge, Work Studio, Laundry room and a powder room. Family lounge is fully opened out to the roof terrace; designed for multipurpose activities; which is an ideal platform to spend the dusky evening under the mutable sky providing an obstruction-free view to the eyes and mind.
Text description provided by the architects










