Residence at Buller’s Lane

- Architects: PWA Architects
- Location: Colombo, Sri Lanka
- Area: 3,800 ft2
- Project Year: 2019
- Photographer: Eresh Weerasuriya

Oshi and Sahan found ultra-modern minimalist architecture to be a bore, and desired a contemporary house with a twist of French colonial detailing, to suit their likings. They adored the glamor and simplistic elegance of white moldings, vintage brass fittings along with white painted doors and windows. This inspired the architect to use classical details throughout the project to bring out the character desired by the client.

The two being two great hosts wanted a house that would have the intimacy of a home along with the ability to entertain the many guests. Oshi’s passion for cooking created the necessity of a kitchen that would allow her to engage with the guests while preparing her delicacies. Sahan savours his wine and cigars, thus he required a bar that would form a key feature in entertaining. The architects aimed at creating a space that brought in monsoonal breeze and natural light to create a comfortable space and the client’s expressed lifestyle.

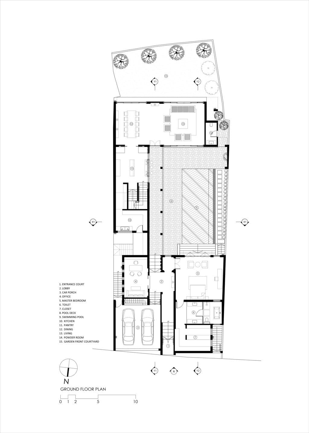
The site had a natural slope from the road, which allowed the architects to carefully carve out a basement floor in one block, with a split level concept for the house. This helped them maintain their proportions and the domestic scale to fit into the low rise neighborhood.
The central courtyard forms the main space of the house where life takes place for the owners. It is flanked by a large veranda for the formal living room and pantry which extends as an informal dinning space.

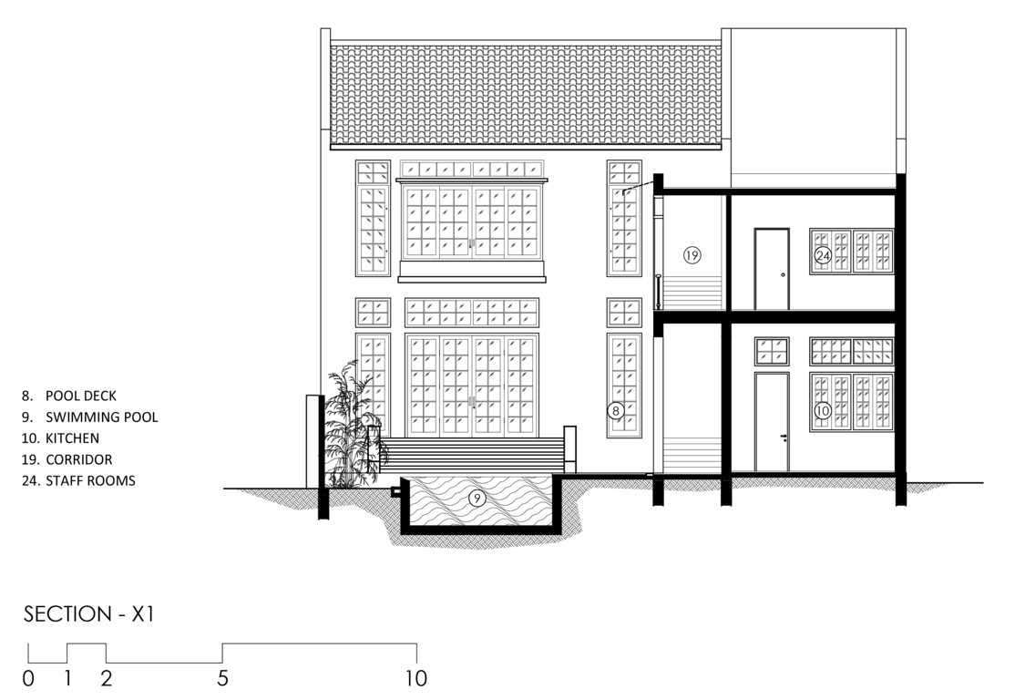
The living room is conceived as an extension of the garden where a space extends to the other and creates a dialogue with the outside. The client’s requirement for natural light and tropical breeze were achieved by treating the living room as an open pavilion with the large sliding doors. The curtain creepers hanging from the first floor slabs make the built form subtle while a frangipani tree dominates the landscape and is complimented by tropical plants around it. The landscape takes prominence over the grey tone weathered granite blocks that were salvaged from old road construction. The highlight of this central space is the emerald glow created by natural sukabhumi tiles used in the pool that illuminates up the courtyard even in the dullest of the days.

For the interiors, vintage furniture in the living room is well complimented by the warmth of the unstained natural timber floor. Intricately detailed light fixtures add glamour to the space, while color is bought in by the soft furnishings and artwork with most of the building remaining in white or in natural color of the timber. Bathrooms are also inspired by vintage interiors, using polished timber vanities, complimented with brass fittings that add grandness to the space.

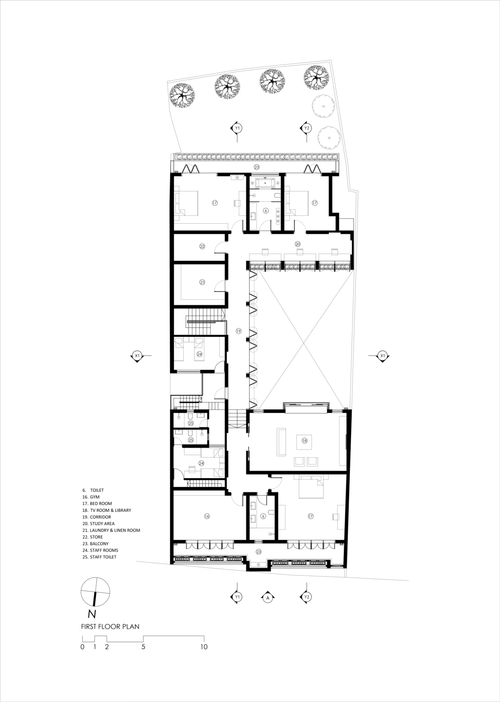
Private spaces in the upper floor are screened by louvered panels which provide the occupants with privacy, while still allowing the breeze and light to filter into in the spaces. Foliage in closer proximity to these openings gives a sense of lush greenery while blocking out the chaos of street.










